Permis de construire – Plan 2d et 3d
Tous permis de moins de 150m² de surface habitable y compris ERP

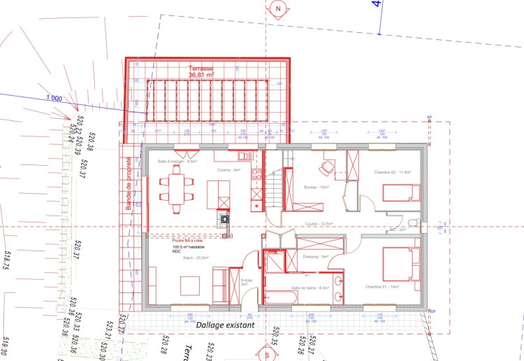
Plans 2d / 3d – visuels et rendus 3d intérieur et extérieur
Plans de l’existant
- Relevés des dimensions du bâtiment existant
- Vues en plan et coupes
Plans d’avant projet
- Esquisse de projet
- Avant projet d’aménagement et de travaux
- Coordination avec les ingénieurs (structure, fluide, thermique, sécurité, bureau de contrôle,…)
- Etude financière
Permis de construire
- Réalisation du dossier de plans
- CERFA
- Attestation RE2020
- Notice paysagère
- Intégration 3d et visuel du projet dans son environnement
Plans d’exécution
- Détails d’exécution
- Réception des plans EXE entreprise et compilation
- Financier
- Planning

3d rendus visuels
ARCHICAD – Intérieur et extérieur


Contactez-moi !
Contactez-moi afin de discuter de votre projet et nous trouverons ensemble une solution adaptée à vos besoins!
06 48 03 46 09
info@aedem.fr
41 grande rue – 74200 Thonon-les-bains
